Neubau Wohnung
"Meine Heimat" in Schorndorf
Beschreibung
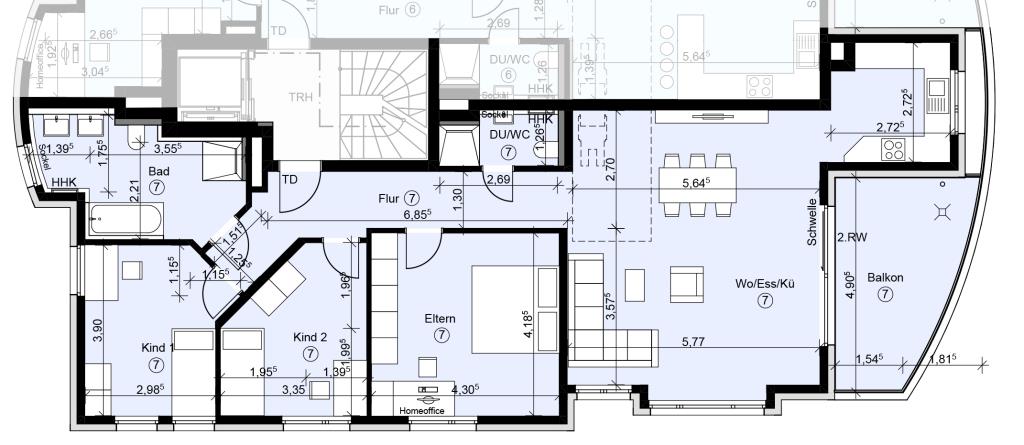
Am südlichen Stadtrand von Schorndorf erstellen wir ein Mehrfamilienhaus mit neun Eigentumswohnungen, Tiefgarage und Einzelgaragen im BEG 55 EE Effizienzhaus-Standard. Entscheiden Sie sich unter den 2-, 3- und 4-Zimmer-Eigentumswohnungen mit Wohnflächen von ca. 60 bis 117m² für Ihre Traumwohnung. Die Wohnungen verfügen größtenteils über nach Süden orientierte Terrassen mit Gartenanteil bzw. Balkone oder Dachterrassen.Ausstatttung
Die Ausstattung in bewährter RIKER-Qualität mit Aufzug über alle Etagen, elektrisch betriebene Rollläden, Video-Gegensprechanlage, Fenster mit 3-fach Verglasung, Parkettböden in allen Wohn- und Schlafzimmern, hochwertige Feinsteinzeugfliesen und komfortable Bäder mit bodengleicher Dusche lässt fast keine Wünsche offen.Sonstige Angaben
Neujahrspreisaktion! Preis gültig bis 31.01.2026Wohnlage
Nur einen Steinwurf vom Stadtwald entfernt - so wohnt und lebt man hier in der Jakob-Degen-Straße in unserem modern geplanten Mehrfamilienhaus. Die Schorndorfer City mit dem historischen Stadtkern und Ihren vielfältigen Einkaufsmöglichkeiten und Restaurants sowie den S-Bahnhof erreicht man in 15-20 Gehminuten oder noch bequemer mit dem Bus. Schule und Kindergarten sind ebenfalls fussläufig erreichbar.
Energieausweis
| Baujahr | 2024 |
|---|---|
| Wesentliche Energieträger | Pellets |
| Energieausweis | liegt vor |
| Energieausweistyp | Bedarfsausweis |
| Endenergiebedarf | 83,00 kWh/(m²*a) |
|---|---|
| Energieeffizientklasse | C |
| Baujahr laut Energieausweis | 2024 |
"Meine Heimat" in Schorndorf73614
Schorndorf
Jakob-Degen-Straße 48
Mit einem Klick auf den nachfolgenden Button werden Sie zu Google Maps weitergeleitet.Jakob-Degen-Straße 48
Lage auf Karte anzeigen

