Das Neubauvorhaben im Mörikeweg 12 liegt in einer begehrten Stadtrandlage von Schorndorf. Die ruhige Umgebung in einem gewachsenen Wohngebiet bietet die perfekte Balance zwischen urbanem Leben und naturnaher Erholung. Hier können Sie die Vorzüge eines entspannten Wohnens genießen, ohne auf die Nähe zur Innenstadt verzichten zu müssen.
Besonders hervorzuheben ist die leichte Hanglage des Grundstücks, die eine wunderbare Aussicht auf die umliegende Landschaft ermöglicht. Von hier aus schweift der Blick über das historische Zentrum der Daimlerstadt sowie die Hügel des Remstals – ein Panorama, das für eine besondere Wohnqualität sorgt.
Die Anbindung an den öffentlichen Nahverkehr sowie die Nähe zur B29 gewährleisten eine gute Erreichbarkeit der umliegenden Städte wie Stuttgart und Waiblingen. Gleichzeitig profitieren Sie von der Nähe zu allen wichtigen Einrichtungen des täglichen Lebens: Einkaufsmöglichkeiten, Schulen, Kindergärten und medizinische Versorgung sind in wenigen Minuten erreichbar.
Freizeitliebhaber finden in der Umgebung zahlreiche Möglichkeiten für Aktivitäten wie Wandern, Radfahren oder Spaziergänge. Die idyllischen Weinberge und charmanten Wege des Remstals laden zum Erkunden ein.
weniger lesen
Neubau Wohnung
"Einatmen. Ausatmen. Aussicht genießen" in Schorndorf
Beschreibung
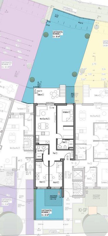
Kompakte 4-Zimmer-Neubauwohnung mit Balkon, Gartenanteil und beeindruckender Aussicht. Schorndorfs Süden gilt seit je her als bevorzugte Wohnlage für Ruhesuchende. Hier im Mörikeweg haben wir ein elegantes Gebäudeensemble mit 14 Eigentumswohnungen, verteilt auf drei Hauseingänge, erstellt. Drei Schlafzimmer, ein offener Wohn-/Ess- und Küchenbereich, zwei Badezimmer und ein großer überdachter Balkon können schon bald Ihr neues Zuhause sein. Die Wohnung befindet sich aktuell im Innenausbau, Boden- und Wandbeläge sowie die Sanitärgegenstände können vom Erwerber noch ausgesucht werden. Ein großer Kellerraum im Untergeschoss gehört zur Wohnung. Auf Wunsch kann ein TG-Stellplatz erworben werden.Das Bauvorhaben wird in Kürze fertiggestellt.
Energieausweis
| Baujahr | 2025 |
|---|---|
| Wesentliche Energieträger | Gas, Strom |
| Energieausweis | liegt vor |
| Energieausweistyp | Bedarfsausweis |
| Endenergiebedarf | 29,00 kWh/(m²*a) |
|---|---|
| Energieeffizientklasse | A |
| Baujahr laut Energieausweis | 2023 |
"Einatmen. Ausatmen. Aussicht genießen" in Schorndorf73614
Schorndorf
Mörikeweg 12
Mit einem Klick auf den nachfolgenden Button werden Sie zu Google Maps weitergeleitet.Mörikeweg 12
Lage auf Karte anzeigen

