Das Neubauvorhaben im Mörikeweg 12 liegt in einer begehrten Stadtrandlage von Schorndorf. Die ruhige Umgebung in einem gewachsenen Wohngebiet bietet die perfekte Balance zwischen urbanem Leben und naturnaher Erholung. Hier können Sie die Vorzüge eines entspannten Wohnens genießen, ohne auf die Nähe zur Innenstadt verzichten zu müssen.
Besonders hervorzuheben ist die leichte Hanglage des Grundstücks, die eine wunderbare Aussicht auf die umliegende Landschaft ermöglicht. Von hier aus schweift der Blick über das historische Zentrum der Daimlerstadt sowie die Hügel des Remstals – ein Panorama, das für eine besondere Wohnqualität sorgt.
Die Anbindung an den öffentlichen Nahverkehr sowie die Nähe zur B29 gewährleisten eine gute Erreichbarkeit der umliegenden Städte wie Stuttgart und Waiblingen. Gleichzeitig profitieren Sie von der Nähe zu allen wichtigen Einrichtungen des täglichen Lebens: Einkaufsmöglichkeiten, Schulen, Kindergärten und medizinische Versorgung sind in wenigen Minuten erreichbar.
Freizeitliebhaber finden in der Umgebung zahlreiche Möglichkeiten für Aktivitäten wie Wandern, Radfahren oder Spaziergänge. Die idyllischen Weinberge und charmanten Wege des Remstals laden zum Erkunden ein.
weniger lesen
Neubau Wohnung
"Einatmen. Ausatmen. Aussicht genießen" in Schorndorf
Beschreibung
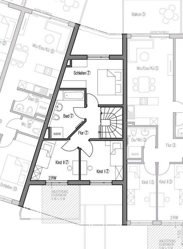
Das Bauvorhaben im Mörikeweg 12, 12/1, 12/2 bildet ein stimmiges Ensemble von klassisch inspirierter Architektur auf einem hanglagigen Grundstück mit terrassierten Gartenanteilen im rückseitigen Bereich der Gebäude. Unsere Wohnung 7 ist ein klassisches "Haus im Haus" nach WEG geteilt mit separatem Hauszugang. Das Raumangebot umfasst im Erd- und Obergeschoss 4 Zimmer, Küche (mit Abstellraum), Bad, Gäste-WC, zwei Terrassen und einen Gartenanteil. Die Ausstattung beinhaltet Parkettböden in Wohn- und Schlafräumen, Feinsteinzeugfliesenböden in Bad und WC, elektrisch betriebene Rollläden und Fußbodenheizung (Wärmepumpe) in allen Räumen. Abgerundet wird dieses Angebot mit einer voll ausgestatteten Marken-Einbauküche.Diese Wohnung ist sofort verfügbar!
Energieausweis
| Baujahr | 2025 |
|---|---|
| Wesentliche Energieträger | Gas, Strom |
| Energieausweis | liegt vor |
| Energieausweistyp | Bedarfsausweis |
| Endenergiebedarf | 29,00 kWh/(m²*a) |
|---|---|
| Energieeffizientklasse | A |
| Baujahr laut Energieausweis | 2023 |
"Einatmen. Ausatmen. Aussicht genießen" in Schorndorf73614
Schorndorf
Mörikeweg 12/1
Mit einem Klick auf den nachfolgenden Button werden Sie zu Google Maps weitergeleitet.Mörikeweg 12/1
Lage auf Karte anzeigen

